via Scobar

Vendita > Palermo > Campolo > Appartamento > Attico

Descrizione immobile

(Scobar-Campolo) Rara opportunità...sito in prossimità di "Piazza Campolo" e più precisamente alla via Scobar, proponiamo all'interno di un edificio signorile un esclusivo appartamento posto al piano ATTICO e SUPER ATTICO (7-8) unico nel suo genere finemente rifinito e totalmente ristruttutato nell'anno 2021 e provvisto di ampi spazi esterni con tripla esposizione;

L'appartamento in oggetto, perfettamente in regola con le normative urbanistiche-catastali vigenti, è dotato di tutti i comforts (porta blindata,pavimentazione in parquet  prefinito sbiancato, sistema di riscaldamento radiante a pavimento,impianti totalmente a norma,sistema di climatizzazione, infissi in alluminio vetro-camera a taglio termico, impianto d'allarme ,ect..) presenta una superfice coperta di mq 265 circa su 2 elevazioni ( con ingressi indipendenti e collegate internamente da una elegante scala in legno) ed una superfice esterna di mq 130 circa (costituita da 3 balconi e sopratutto da un'ampia terrazza panoramica perimetrale);

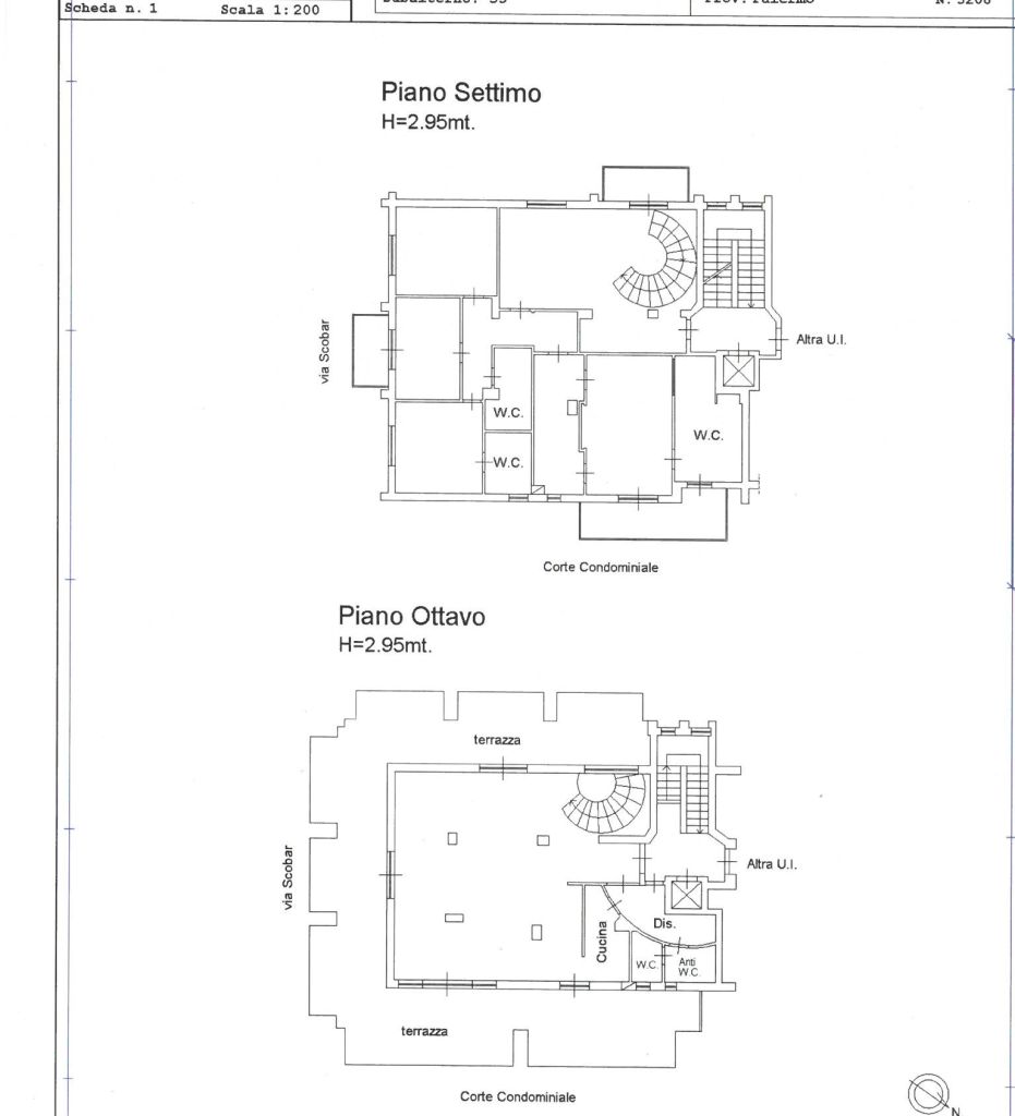
Piano Attico(settimo)con una superfice coperta di mq 140, destinato alla zona notte,composto da ingresso su grande disimpegno, 4 camere da letto (due delle quali con bagno privato e camera armadio),tripli servizi,ripostiglio e 3 balconi per una superfice sterna di mq 25;

Piano SUPER ATTICO(ottavo)con una superfice di mq 125, destinato alla zona giorno e di rappresentanza ,composto da ingresso con disimpegno su una zona living open space pari a tre vani con elegante cucina a vista ad "isola",servizio con doccia, ripostiglio,lavanderia ed una terrazza panoramica perimetrale di mq 100. 


Richiedi Informazioni