Via De Fonseca

Vendita > Palermo > Pallavicino > Appartamento > Appartamento

Descrizione immobile

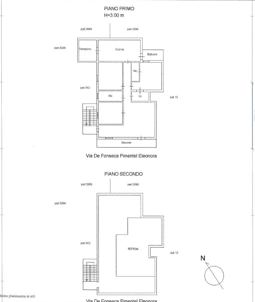
(Castelforte-Pallavicino) Rara opportunità,sito nello storico quartiere "Pallavicino" in prossimità di via Castelforte e più precisamente alla via Eleonora De Fonseca, immerso in un'oasi di verde e tranquillità proponiamo un elegante e rifinito appartamento  indipendente su due elevazioni(piano primo e secondo) provvisto di ampi spazi esterni; l'immobile in oggetto,perfettamente in regola con la normative urbanistice-edilizie vigenti, è stato totalmente ristrutturato nel 2021(CLASSE ENERGETICA B),è dotato di tutti i comforts e risulta così meglio descritto: ingresso con disimpegno su salone doppio,3 camere(di cui una con cabina armadio e bagno privato annesso),cucina abitabile,doppi servizi, 2 balconi ,un terrazzino ed ad un'ampia terrazza panoramica soprastante di mq 130 ( alla quale si ha accesso attraverso una scala esterna a chiocciola) con vista mozzafiato frone Monte Pellegrino e Parco dlla Favorita e parziamente coperta da una tettoia in legno;ampia area destinata a parcheggio di mq 50 circa di pertinenza.

Caratteristiche immobile

  • Superficie: 130 mq
  • N° locali: 5
  • Stato: Ristrutturato Ottimo
  • Classe immobile: Signorile
  • Proprietà: Intera
  • Anno di costruzione: 1970
  • Ingresso
  • Cucina: Abitabile
  • Camere da letto: 3
  • Soggiorno/Salotti: 2
  • Bagni: 2
  • Giardino: Nessuno
  • Piano: 1
  • Tipo piano: Basso
  • n° piani: 2
  • Posti auto: 3
  • Balcone
  • Terrazzo
  • Esposizione: Doppia
  • Riscaldamento: Autonomo
  • Climatizzato
  • Impianto TV: Singolo
  • Porta blindata
  • Allarme
  • Indice: 0 kWh/mq
Richiedi Informazioni